Tầng bán hầm trong nhà ống là một là một phần thiết kế vô cùng quan trọng và độc đáo trong kiến trúc hiện đại ở Việt Nam. Với thiết kế nằm sâu dưới mặt đất, tầng bán hầm đem lại không gian đa dạng và nhiều tiện ích cho ngôi nhà xinh yêu của bạn. Dưới đây mời bạn cùng tìm hiểu và khám phá top các mẫu nhà ống có tầng bán hầm đẹp siêu thực khiến ai cũng phải trầm trồ trước kiến trúc ngôi nhà của bạn.
Giới thiệu về dịch vụ xây dựng nhà phố của Đo Đạc Bình Thuận
Đo Đạc Bình Thuận tự hào là đơn vị chuyên thi công nhà phố với chất lượng vượt trội tại khu vực Bình Thuận. Chúng tôi chú trọng từng chi tiết trong quá trình xây dựng, từ phần móng vững chắc đến mái nhà kiên cố, đảm bảo ngôi nhà của bạn bền đẹp và an toàn theo thời gian.
Với đội ngũ kiến trúc sư nhiều kinh nghiệm, Đo Đạc Bình Thuận mang đến các mẫu nhà phố đa dạng phong cách như hiện đại, cổ điển, mái thái, mái nhật… Chúng tôi sẵn sàng tư vấn và điều chỉnh theo nhu cầu cụ thể của từng khách hàng, tạo nên không gian sống phù hợp và tiện nghi.
Chúng tôi cam kết cung cấp báo giá chi tiết, rõ ràng và không phát sinh chi phí ẩn trong quá trình thi công. Dịch vụ xây dựng nhà phố tại Đo Đạc Bình Thuận luôn được tối ưu chi phí để phù hợp với ngân sách của từng hộ gia đình mà vẫn đảm bảo chất lượng công trình.
Đội ngũ nhân sự của Đo Đạc Bình Thuận bao gồm các kỹ sư xây dựng, giám sát công trình và đội thợ lành nghề, được đào tạo bài bản và có nhiều năm kinh nghiệm. Chúng tôi thi công đúng tiến độ, đúng kỹ thuật và luôn giữ an toàn lao động lên hàng đầu.
Không chỉ dừng lại ở thi công, Đo Đạc Bình Thuận còn hỗ trợ khách hàng hoàn tất các thủ tục liên quan đến cấp phép xây dựng, xin giấy phép sửa chữa, bản vẽ thiết kế kỹ thuật và hồ sơ hoàn công. Giúp bạn tiết kiệm thời gian và tránh được những phiền toái không đáng có.
Sau khi bàn giao công trình, Đo Đạc Bình Thuận tiếp tục đồng hành cùng khách hàng với chính sách bảo hành rõ ràng và dịch vụ hậu mãi tận tâm. Bất cứ vấn đề gì phát sinh sau xây dựng, đội ngũ kỹ thuật sẽ nhanh chóng kiểm tra và xử lý, đảm bảo sự an tâm cho gia đình bạn.
Giới thiệu về mẫu nhà ống có tầng bán hầm
Tầng bán hầm hay còn gọi là tầng hầm nổi tiếng là kiểu tầng hầm có thiết kế một nửa nằm trên mặt đất, nửa còn lại nằm âm dưới lòng đất. Bởi vì có đặc tính nằm âm dưới lòng đất nên khi chọn vật liệu xây dựng phải thật đặc biệt. Các cột trụ phải thật sự vững chắc để có thể chịu đựng và nâng đỡ được cả căn nhà, bảo đảm an toàn tuyệt đối cho gia đình của bạn.
Lợi ích vượt trội của mẫu nhà ống có tầng bán hầm
Một trong những ưu điểm nổi bật của tầng bán hầm là không gian lưu trữ thông minh. Chúng cung cấp một khoảng không gian rộng rãi để bạn tổ chức và lưu trữ những vật dụng quan trọng, giúp giảm bớt sự lộn xộn trên các tầng khác của ngôi nhà. Bạn có thể dễ dàng sắp xếp và tìm kiếm các mặt hàng, tạo ra một không gian sống gọn gàng và tiện nghi.
Với những ngôi nhà ống nhỏ và hẹp, tầng bán hầm sẽ là nơi cực kì phù hợp để làm gara để xe. Bởi loại hình thiết kế này bảo đảm sự thông thoáng ánh sáng cho không gian nếu được thiết kế một cách hợp lý và chuẩn chỉnh nhất.

Bạn cũng có thể sáng tạo chúng thành nơi để giải trí đầu óc như biến chúng thành phòng xem phim riêng với hệ thống âm thanh ánh sáng hấp dẫn hoặc nếu bạn có niềm đam mê bất tận với âm nhạc cũng có thể biến chúng thành phòng karaoke để thỏa sức ca hát, để tạo riêng chp mình mổ buổi tại gia cùng độc đáo và đặc sắc bên người thân của mình.
Công dụng khác của mẫu xây dựng nhà 2 tầng 1 hầm là hóa mình thành nơi làm việc yên tĩnh và thư giãn nhất có thể bởi tính tách biệt của chúng với bên ngoài. Mang lại sự riêng tư tuyệt đối giúp bạn đủ sự tập trung trong công việc lẫn học tập.
Xây dựng mẫu nhà ống có tầng bán hầm có cần xin giấy phép xây dựng không?
Theo pháp luật Việt Nam hiện nay không việc xây tầng hầm không còn bị cấm đoán như ngày xưa nữa. Tuy nhiên khi bắt tay vào xây dựng thiết kế đó cần đảm bảo các quy định và an toàn trong xây dựng và cần phải xin cấp phép xây dựng theo đúng quy định của pháp luật.

Theo khoản 2 Điều 175 BLDS 2015 về ranh giới giữa các bất động sản.
– Người sử dụng đất được sử dụng không gian và lòng đất theo chiều thẳng đứng từ ranh giới của thửa đất phù hợp với quy định của pháp luật và không được làm ảnh hưởng đến việc sử dụng đất của người khác.
– Người sử dụng đất chỉ được trồng cây và làm các việc khác trong khuôn viên đất thuộc quyền sử dụng của mình và theo ranh giới đã được xác định; nếu rễ cây, cành cây vượt quá ranh giới thì phải xén rễ, cắt, tỉa cành phần vượt quá, trừ trường hợp có thỏa thuận khác.
Một số lưu ý khi xây nhà ống có tầng bán hầm
Khi xây dựng tầng bán hầm cho nhà ống, có một số lưu ý quan trọng để đảm bảo tính an toàn, tiện nghi và sự ấn tượng cho không gian này.
Trước hết, việc bố trí hệ thống thông gió và thoát hiểm là điều cần thiết. Đảm bảo rằng tầng bán hầm có hệ thống thông gió tốt và đủ ánh sáng tự nhiên để tránh tạo ra một không gian ẩm ướt và ngột ngạt. Hơn nữa, lưu ý thiết kế các lối thoát hiểm dự phòng như cửa sổ thoát hiểm hoặc cầu thang dự phòng để đảm bảo an toàn trong trường hợp khẩn cấp.

Tiếp theo, cần xem xét vấn đề chống thấm cho tầng bán hầm. Điều này đặc biệt quan trọng để ngăn nước, độ ẩm và ẩm mốc xâm nhập vào không gian. Sử dụng vật liệu chống thấm và thiết kế hệ thống thoát nước hiệu quả để đảm bảo tầng bán hầm luôn khô ráo và an toàn.
Ngoài ra, cân nhắc về chiều cao của tầng bán hầm cũng rất quan trọng. Đảm bảo rằng không gian đủ cao để người sử dụng thoải mái di chuyển mà không gặp phải sự hạn chế. Điều này đặc biệt quan trọng nếu bạn dự định sử dụng tầng bán hầm làm phòng sống hoặc khu vực giải trí.
Không chỉ quan tâm đến khía cạnh kỹ thuật, màu sắc và ánh sáng cũng đóng vai trò quan trọng trong tầng bán hầm. Sử dụng màu sáng và ánh sáng tự nhiên để tạo cảm giác rộng rãi và thoáng đãng. Đồng thời, lưu ý sử dụng ánh sáng nhân tạo phù hợp để làm nổi bật các khu vực quan trọng và tạo điểm nhấn cho không gian.
Top các mẫu nhà ống có tầng bán hầm đẹp đến điên đảo
1. Nhà ống 2 tầng có tầng bán hầm
Kiểu thiết kế nhà ống 2 tầng này vừa mang lại một không gian thoải mái thoáng đãng vừa cũng có thể tiết kiệm được diện tích cho gia chủ đem lại sự tươi mới và hiện đại.

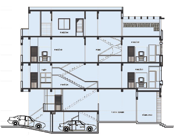
2. Nhà ống 3 tầng có tầng bán hầm
Mẫu nhà ống 3 tầng với tầng bán hầm là một giải pháp thiết kế sáng tạo và đầy tiện ích, đáp ứng nhu cầu sống của các gia đình hiện đại trong không gian hạn chế. Tầng bán hầm không chỉ giúp tối ưu hóa diện tích xây dựng mà còn mang đến nhiều ứng dụng thông minh, biến nó trở thành một không gian đa chức năng.

3. Nhà ống 4 tầng có tầng bán hầm
Cấu trúc 4 tầng hiện đại kết hợp tầng bán hầm với thiết kế siêu đẹp từ trong ra ngoài khiến ai đi qua cũng phải ngước nhìn.

Thiết kế mái Thái chưa bao giờ là hết hot trong các công trình kiến trúc xây dựng, thêm vào đó là kết hợp thêm tầng bán hầm vô cùng tiện nghi mang đến sự thanh thoát cho ngôi nhà của bạn.
4.Nhà ống có tầng bán hầm tuyệt đẹp
Lại là một thiết kế nhà ống 3 tầng có tầng hầm không có điểm nào để chê với lối thiết kế độc đáo điểm nhấn thêm cây xanh chung quanh nhà biến chúng thêm phần mát mẻ tươi xanh.

5.Tầng bán hầm trong nhà
Thiết kế tầng hầm trong nhà cổ điển mang lại hơi hướng sang trọng mà lịch lãm khiến ngôi nhà của bạn trở nên lung linh hơn trên mọi góc độ.

Mang đến không gian sống đa năng và độc đáo, mẫu nhà ống có tầng bán hầm là lựa chọn hoàn hảo cho những ai tìm kiếm sự tiện nghi và sự sáng tạo. Với lưu ý đáng quan tâm về thông gió, chống thấm, chiều cao và ánh sáng, không gian này trở thành một phần không thể thiếu của ngôi nhà hiện đại. Từ không gian lưu trữ thông minh đến phòng giải trí, không gian làm việc và sân chơi sáng tạo, tầng bán hầm đem đến những trải nghiệm độc đáo và không gian sống đẳng cấp.